مخططات الأسلاك الكهربائية لأنظمة تكييف الهواء HVAC - الجزء الأول
مقدمة عن أنواع أنظمة
التكييف ،
مقدمة عن أنواع المحركات / الضواغط المستخدمة في أنظمة تكييف الهواء
،
اليوم
، سأشرح الأسلاك الكهربائية لأنواع أنظمة تكييف الهواء المختلفة.
|
1- أهمية التمديدات الكهربائية لأنظمة التكييف
·
معرفة حجم نظام التدفئة والتهوية وتكييف الهواء (أنواع
المعدات ، المواقع ، ...) ، ·
فهم كيفية عمل معدات HVAC المختلفة في نظام
HVAC معين.
|
2- كيف تحصل على التمديدات الكهربائية لأنظمة التكييف؟عادة ، يمكن الحصول على مخطط الأسلاك الكهربائية لأي جهاز HVAC من الشركة
المصنعة لهذا الجهاز الذي يوفر مخطط الأسلاك الكهربائية في دليل المستخدم (انظر الشكل 1 ) أو في
بعض الأحيان على الجهاز نفسه (انظر الشكل 2 ).
|
3- أنواع مخططات التمديدات الكهربائية لأنظمة التكييفهناك ثلاثة أنواع أساسية من مخططات الأسلاك المستخدمة في
صناعة HVAC / R اليوم
، وهي:
|
3.1 مخطط السلمإنه النوع الأكثر شيوعًا من مخططات الأسلاك. يطلق عليه
اسم سلم لأن الرموز المستخدمة لتمثيل المكونات في النظام قد تم وضعها على درجات
سلم. سيشار إلى مخططات السلم على
أنها مخططات "تخطيطية" ، أو ببساطة "مخططات". يظهر الشكل التخطيطي النموذجي لمكيف الهواء المعبأ في الشكل 3.
في المخططات الكهربائية ، تمثل الرموز مكونات مختلفة في
الدائرة ، بينما تمثل الخطوط الأسلاك التي تربطها. الهدف من المخطط العام هو إظهار
كيفية عمل الدائرة ، وليس كيف تبدو في الواقع. ملحوظة: يوضح مخطط الأسلاك حالة قطعة من المعدات عند عدم وجود طاقة
مطبقة على الوحدة. على سبيل المثال ، إذا تم تصوير مفتاح على أنه مفتوح بشكل
طبيعي (N / O) أو مغلق بشكل طبيعي
(N / C) ، فتذكر أن موضع المفتاح يظهر كما يظهر
عندما لا توجد طاقة مطبقة على تلك الدائرة. إذا كان هناك أي انحراف عن هذه الممارسة ، فستكون هناك
ملاحظة توضيحية على التخطيطي. قبل أن تبدأ في النظر إلى المخططات الكهربائية ، تذكر أن
هناك دائمًا خمسة مكونات أساسية لأي تخطيط:
|
3.2 الرسم التخطيطي الخطي·
عادة ما تتضمن رسومات تشبه المكونات نفسها إلى حد كبير ،
بدلاً من الرموز. ·
الشكل 5 في الصفحة السابقة هو مثال على
مخطط خطي نموذجي. قارن الشكل 3 والشكل 5 ولاحظ الاختلافات في طريقة تمثيل المحركات والمفاتيح
والمحولات. ليس من غير المألوف اليوم أن
تعرض بعض الشركات المصنعة كلا النوعين من المخططات على أجهزتهم. |
3.3 مخطط التثبيتيستخدم هذا الرسم البياني بشكل أساسي من قبل مقاول التركيب. عادةً ما
تُظهر فقط ماهية توصيلات اللوحة الطرفية ، ونادرًا ما تتضمن أي أسلاك داخلية
للوحدة. الشكل 6 هو مخطط تركيب نموذجي لنظام التبريد السكني. |
4- كيف تقرأ مخططات الأسلاك الكهربائية؟لقراءة المخططات الكهربائية ، يجب أن تكون على دراية بما يلي:
|
4.1 الرموز المستخدمة في المخططاتأهم الرموز المستخدمة في التخطيطات الكهربائية هي: ·
مزودات الطاقة، ·
الأسلاك ، ·
مفاتيح ، ·
الأحمال. أ- مزودات الطاقة: (انظر الشكل 7 ) يتم استخدام العديد من الفولتية المختلفة للإمداد في صناعة HVAC / R ،
بدءًا من 575-V ، وإمدادات الطاقة ثلاثية
الطور إلى الفولتية لدائرة التحكم بجهد 24 فولت. يمكن الإشارة إلى مصادر الطاقة بخطوط متصلة أو بخطوط متقطعة
أو منقطة. ب- الأسلاك: ·
تستخدم معظم المخططات خطوطًا مستقيمة لتمثيل الأسلاك التي
تربط المكونات ببعضها البعض. ·
في حالة توصيل سلكين داخليًا ، يظهر الاتصال عادةً كنقطة (دائرة سوداء صلبة) ، كما هو موضح في تلك النقاط
المميزة بعلامة "A" في الشكل 8.1 . لكن
لاحظ أنه لا توجد نقطة للإشارة إلى تقاطع أو اتصال عند النقطة "ب". هذا يعني أن أحد الأسلاك يمر ببساطة فوق السلك الآخر. ·
انظر الآن إلى الشكل 8.2 ، تظهر الأسلاك
المتقاطعة بنصف دوائر أو حلقات "تقفز" فوق الأسلاك الأخرى (انظر تلك
النقاط المميزة بعلامة "أ"). لاحظ أيضًا أنه في هذا النوع من المخططات ، تظهر الوصلات بدون نقاط اتصال
(انظر تلك النقاط المميزة بعلامة "ب"). ملحوظات: ·
لا تتبع جميع الشركات المصنعة نفس ممارسات الرسم التخطيطي
وسترى عدة أنماط مختلفة من مخططات الأسلاك. ·
إذا تم استخدام النقاط لإظهار التقاطعات ، فإن الخطوط
المتقاطعة بدون نقاط تعني أن السلكين يتقاطعان دون اتصال. إذا تم استخدام الحلقات أو
القفزات لتصوير عمليات الانتقال ، فسيتم توصيل الأسلاك التي تلتقي - حتى بدون
نقاط. تحديد الأسلاك:(انظر الشكل 9 ) يمكن لكل مصنع تحديد الأسلاك المستخدمة في المخططات
الكهربائية بإحدى الطرق التالية:
ملاحظة : يجب تحديد طريقة تحديد الأسلاك المستخدمة بوضوح في وسيلة
الإيضاح المصاحبة للرسم. ج- المفاتيح: المفتاح هو جهاز يقطع الطاقة عن الحمل. من الممكن ان تكون:
C.1
مفتاح التشغيل يدويًا: يمكن أن يكون المفتاح في الوضع المغلق (مغلق عادة) (N / C) أو في
الوضع المفتوح (مفتوح عادة) (N / O) (انظر الشكل 10 ). يجب
أن تلاحظ أنه في تخطيط الأسلاك الكهربائية يظهر موضع المفتاح كما يظهر عندما لا
توجد طاقة مطبقة على تلك الدائرة. إذا كان
هناك أي انحراف عن هذه الممارسة ، فستكون هناك ملاحظة توضيحية على التخطيطي. يتميز التبديل بـ: (انظر الشكل 11 )
ملحوظة: يمثل الخط المتقطع في رموز التبديل الاتصال الميكانيكي الذي
يجعل جهات الاتصال تتحرك معًا ، لكن جهات الاتصال هذه غير متصلة كهربائيًا. ج .2 يتم تفعيلها تلقائيًا بالضغط أو درجة الحرارة ( مفاتيح
التحكم) : ضوابط الضغط ودرجة الحرارة هي مفاتيح ؛ كما يمكن تهيئتها بمجموعات
مختلفة من الأعمدة والأغطية.
·
يظهر مفتاح درجة الحرارة ( RS-2 ) مع وجود
الذراع فوق نقاط التلامس. يشير هذا
إلى أن المفتاح يفتح عند ارتفاع درجة الحرارة ويغلق عند انخفاض درجة الحرارة. ·
يظهر مفتاح الضغط ( AFS-2 )
مع وجود الذراع أسفل نقاط التلامس. هذا يدل على أن المفتاح يفتح عند انخفاض الضغط ويغلق عند
ارتفاع الضغط. ·
بالنسبة لمفتاح حد SPDT (LS) ،
عندما تكون هناك زيادة في درجة الحرارة ، تنتقل جهات الاتصال
"C" إلى "N / C" إلى الوضع "N / O". عندما تنخفض درجة الحرارة ، تعود جهات الاتصال
"C" إلى "N / O" إلى الوضع "N / C". ج / 3 مفتاح التحكم الكهربائي: أ- المرحلات: ·
المرحلات هي مفاتيح تحكم تعمل بالكهرباء. الرموز
التخطيطية المستخدمة لتمثيل المرحلات هي نفسها تلك الخاصة بالمفاتيح التي يتم
تشغيلها يدويًا ، باستثناء أن رموز الترحيل غالبًا ما تتضمن ملفًا لولبيًا. ·
هناك عدة طرق ممكنة لتصوير ملف الملف اللولبي. يوضح
الشكل 13 تمثيلين تخطيطيين مختلفين
لمرحل DPDT. ·
لاحظ أن المرحلات متعددة الأقطاب ، مثل المفاتيح متعددة
الأقطاب ، متصلة ميكانيكيًا ولكن ليس كهربائيًا. ب- الملامسات: ·
الموصل هو نوع من مرحلات الخدمة الشاقة التي تتعامل مع
الفولتية العالية والتيارات الأعلى من مرحل التحكم. تبدو الموصلات متطابقة تقريبًا مع
المرحلات في المخططات التخطيطية. ·
تستخدم بعض الشركات المصنعة ملامسات تستخدم مجموعة واحدة من
جهات الاتصال. يتم وضع "شريط ناقل"
فوق الاتصال حيث ستكون المجموعة الأخرى ، كما هو موضح في الشكل 14. د- الأحمال:(انظر الشكل 15 ) الأحمال هي الأجهزة التي تستهلك الطاقة وتحولها إلى شكل آخر
من أشكال الطاقة ، مثل الحركة أو الحرارة. قد تكون محركات أو سخانات أو
أضواء أو قطع أخرى من المعدات. المحول هو
نوع من الأجهزة المستهلكة للطاقة ، ولكن بدلاً من تحويل الطاقة ، يقوم المحول
بتغيير الجهد أو التيار. |
4.2 تكوينات الرسم التخطيطيهناك نوعان من التكوينات الأساسية المستخدمة في المخططات
اليوم لإظهار الموضع التقريبي للأحمال والمفاتيح والجهود المختلفة للطاقة أو
الإمداد. هم انهم : (انظر الشكل 16 )
أ- الترتيب جنبًا إلى جنب: في هذا الترتيب ، يضع المصنعون عادةً المحركات والمكونات
الأخرى المستهلكة للطاقة على الجانب الأيمن من الرسم التخطيطي. هذا يسمى
جانب الحمل. يتم وضع المفاتيح وأجهزة التحكم
الأخرى على الجانب الأيسر من الرسم التخطيطي. هذا يسمى جانب الخط. ب- ترتيب الصعود والهبوط: في هذا الترتيب ، ينقسم التخطيطي إلى:
عادةً ما يتم وضع قسم الجهد العالي في الجزء العلوي من الرسم
التخطيطي ، ويتم وضع قسم الجهد المنخفض في أسفل الرسم التخطيطي (انظر الشكل 10). تمثل
الخطوط الرأسية عند الحواف الخارجية للمخطط مصدر الطاقة الكهربائية. توجد جميع أجهزة التحكم وأجهزة التحميل على الخطوط الأفقية
بين هذه الخطوط الرأسية الخارجية. طريقة سهلة لتحديد الفولتية المختلفة في هذا النوع من
التخطيطي هي البحث عن المحول. عادة ما يكون الخط الفاصل لتغييرات الجهد. يوضح الشكل 17 العديد من الرموز التخطيطية المستخدمة في صناعة
HVAC / R اليوم. |
4.3 محددات الرسم التخطيطيكما هو الحال في خرائط الطريق ، يضع جميع صانعي الخرائط
تقريبًا أرقامًا و / أو أحرفًا على طول الحواف الرأسية والأفقية للخرائط لمساعدة
المستخدمين في العثور على مدن أو بلدات أو معالم معينة أو مواقع أخرى. تستخدم
المخططات الكهربائية نظامًا مشابهًا. ألق نظرة على الشكل 18 . هذا هو
نفس الرسم التخطيطي لمكيف الهواء
المعبأ الذي رأيته في الشكل 3 ، لكن لاحظ أنه
تمت الآن إضافة عمود من الأرقام الصغيرة ، يجري أسفل الجانب الأيسر من الرسم
التخطيطي. تُستخدم هذه الأرقام للإشارة
إلى الموقع النسبي لكل خط أفقي في الرسم التخطيطي. ملحوظة: إذا وقع خط بين رقمين ، فسيتم استخدام الرقم الموجود أسفل
الصفحة عمومًا كمرجع للموقع. يمكن أن يكون هذا النوع من نظام ترقيم الأسطر مفيدًا جدًا في
مساعدة القارئ على تحديد موقع مكون معين في التخطيطي ، بالإضافة إلى مفتاح
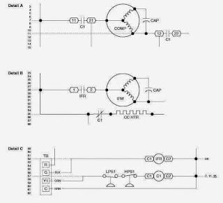
التحكم الخاص به. للحصول على أمثلة:(انظر الشكل 19 ) أ- أرقام على الجانب الأيسر من الرسم البياني: في الشكل 19 أ ، توجد جهات
اتصال "C1" في الخطين 7 و 11.
وبالمثل ، في الشكل 19 ب ، يمكنك العثور على مفاتيح الجهد العالي "IFR" و "C1" في
الخطين 28 و 35 ، على التوالي. انظر الآن
إلى الجزء السفلي من مخطط الأسلاك في الشكل
18 وحدد موقع ملفات الترحيل
"IFR" و "C1" على الخطين 52 و 57. ب- أرقام على الجانب الأيمن من الرسم البياني: في الشكل 19 ج ، لاحظ أن هناك
أيضًا أرقامًا صغيرة على طول الجانب الأيمن من الرسم التخطيطي. تحدد هذه الأرقام موقع الخط لجهات اتصال الترحيل. يخبرك الرقم الصغير 28 في الهامش الأيمن بموقع خط جهات
الاتصال المرتبطة بملف الترحيل "IFR". انظر إلى السطر 28 في الشكل
19 ب ، وستجد جهات
الاتصال "IFR". وبالمثل ، فإن
الأرقام 7 و 11 و 35 في الهامش الأيمن من الشكل 19C تحيلك إلى الخطوط التي يمكن العثور فيها على جهات الاتصال المرتبطة
بملف الترحيل "C1". ج- أرقام تحتها خط: لاحظ أن 35 تم وضع خط تحتها. يشير الرقم المسطر إلى جهة
اتصال مغلقة عادةً (وعلى العكس من ذلك ، يشير الرقم غير المسطر إلى جهة اتصال
مفتوحة عادةً). وفقًا لذلك ، ستجد أن جهات
الاتصال "C1" الموجودة في السطر 35
في الشكل 19 ب تظهر على أنها مغلقة بشكل طبيعي ، وأن جهات الاتصال
"C1" الموجودة في الخطين 7 و 11 في الشكل 19 أ تظهر على
أنها مفتوحة بشكل طبيعي. |
|
لمزيد من المعلومات حول المخططات الكهربائية ، يرجى مراجعة
المقالات التالية: ·
رسم تخطيطي كهربائي أحادي الخط - الجزء
الأول ·
رسم تخطيطي كهربائي أحادي الخط - الجزء
الثاني ·
رسم تخطيطي كهربائي أحادي الخط - الجزء
الثالث |
في المقالة التالية ، سأشرح مخططات الأسلاك الكهربائية لأنواع ومعدات أنظمة تكييف الهواء
المختلفة . لذا ، يرجى الاستمرار في
المتابعة.
بسجل
حافل في صناعة وصيانة المكيفات المركزية و أنابيب التبريد للشيلرات والمبادلات الحرارية
وصناعة مجاري الهواء بكفاءة وسرعة.
نعمل على صيانة جميع
أنواع المبردات والشيلرات والمبادلات الحرارية والكويلات، لدينا بالفعل معلومات
حول أي وحدة تبريد تحتاج إلى استبدالها او صيانتها. مثل الملفات ( الكويلات ) نحن متخصصون في صناعة ذلك ،
نحن على استعداد لتنفيذ
طلبك بأسرع مستوى من الطوارئ ، لذلك نحن نقدم لك خيارات متعددة بالسعر
المناسب وسرعة التصنيع و الاقرب إليك مع توفير إمكانية الشحن السريع إذا لزم
الأمر إلى كل مدن المملكة العربية السعودية ,الرياض • مكة المكرمة • المدينة
المنورة • القصيم • الشرقية • عسير • تبوك • حائل • الحدود الشمالية • جازان •
نجران • الباحة • الجوف. يرجى منحنا الفرصة للعمل معك في مشروعك التالي، دعنا
نساعدك في الكثير من اعمال الصيانة والتركيب في مشروعك التالي.
أطلب الخدمة الان: -
مصنع ماركول رشيد
عبدالعزيز محمد جمجوم
جدة - المدينة الصناعية
الثانية - شارع 49
966550489096+
https://jamjoom-cooling-systems-factoryjcool.business.site/ fuadmarketing@jamjoomarcool.com
jamjoomarcooll@gmail.com
م/ ابو حسام
----------------------------------
Marcool Cooling Systems factory has a proven track record of
manufacturing refrigerant tubes for chillers
efficiently and quickly. For all types of
coolers and chillers, we already have information about any unit
that needs to be replaced or serviced.
Like coils, we are ready to fulfill your order with the fastest level
of emergency, so we offer you multiple
options at the right price, fast manufacturing and fast shipping if
needed. To all cities of the Kingdom of Saudi Arabia, Riyadh • Mecca •
Medina • Qassim • Eastern • Asir • Tabuk • Hail • Northern Borders • Jazan •
Najran • Al Baha • Al Jawf.
Please give us the opportunity to work with you
on your next project, let us help you with a lot of maintenance and
installation work on your next project.
Request the service now:-
Marcool Rashid Abdulaziz Muhammad Jamjoom
Factory
Jeddah - Second Industrial City - 49 . Street
+966550489096
https://jamjoom-cooling-systems-factoryjcool.business.site/
fuadmarketing@jamjoomarcool.com
jamjoomarcooll@gmail.com
M/ Abu Hossam
#كاريير#جودمان #ترين#ريم Rheem#Lennox
# #يورك# رود# إل_جي#بيترا #دايكن #لونكس #ماركول
#مصنع_جمجوم_لأنظمة_التبريد





















تعليقات
إرسال تعليق